hero-image-0

618 - 41 Street SW

The Hills at Charlesworth
Sold
Sold
3
2
1
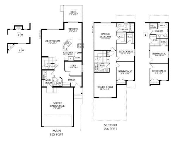
1,761
618 - 41 Street SW details
unit-banner-image
unit-banner-image
unit-banner-image
618 - 41 Street SW is now sold.
Check out available nearby homes below.