hero-image-0

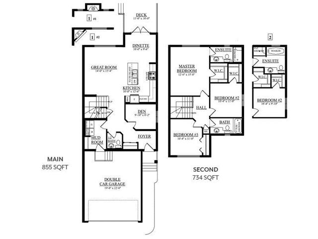
607 - 41 Street SW

The Hills at Charlesworth
Sold
Sold
3
2
1
1,589
607 - 41 Street SW details
unit-banner-image
unit-banner-image
unit-banner-image
607 - 41 Street SW is now sold.
Check out available nearby homes below.