hero-image-0

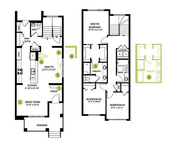
520 - 35 Street SW

The Hills at Charlesworth
Sold
Sold
3
2
1
1,601
520 - 35 Street SW details
unit-banner-image
unit-banner-image
unit-banner-image
520 - 35 Street SW is now sold.
Check out available nearby homes below.