hero-image-0

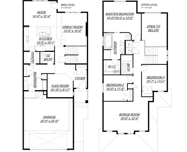
Chianti G Plan

The Hills at Charlesworth
Sold
Sold
3
2
1
From 2,208
unit-banner-imageunit-banner-imageunit-banner-image
Chianti G Plan details
Chianti G Plan is now sold.
Check out available nearby plans below.