












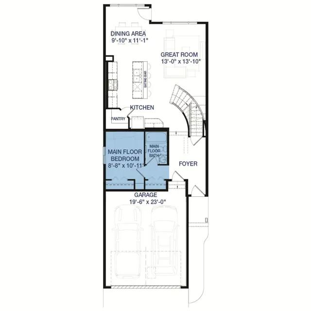
An estate-inspired home blending functionality and elegant design! The open-concept entryway flows into the living area and large kitchen with a 9' island, perfect for hosting. A curved staircase adds a regal touch to the main floor. Upstairs, a sizable flex room separates the spacious primary bedroom from the additional bedrooms. The primary bedroom features a private ensuite spa with a large soaker tub and walk-in, glass-enclosed shower.
Stay informed with Livabl updates on new community details and available inventory.