hero-image-0

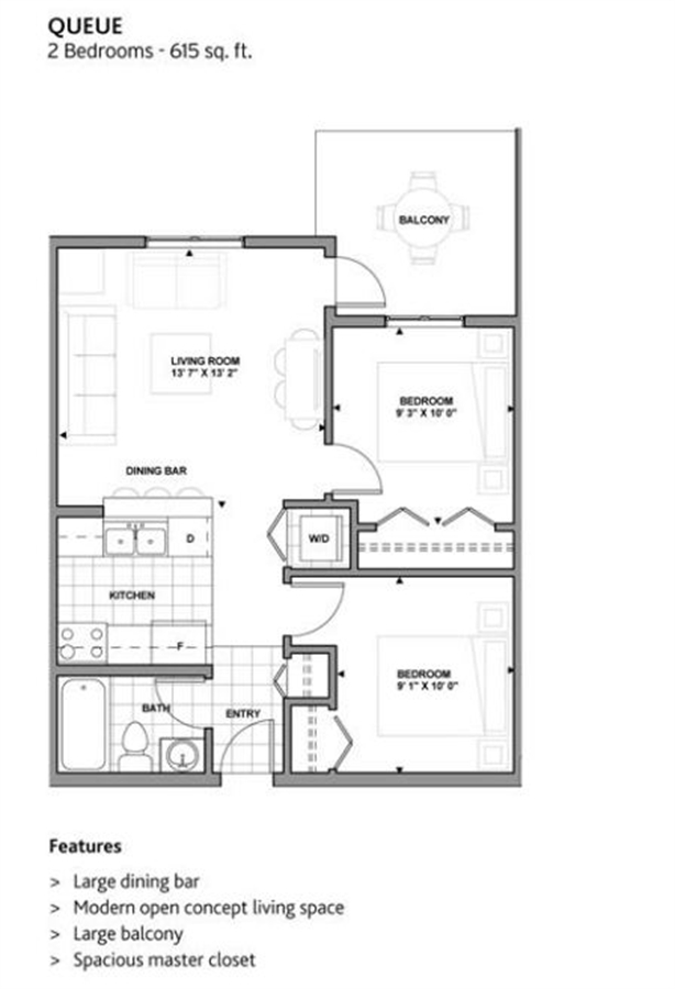
Queue Plan

Rutherford Landing
Sold
Sold
2
1
From 615
unit-banner-imageunit-banner-imageunit-banner-image
Queue Plan details
Queue Plan is now sold.
Check out available nearby plans below.