hero-image-0
hero-image-1
hero-image-2

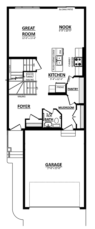
Sophia Plan

Rocha in the Orchards
Sold
Sold
3
2
1
From 1,697
Sophia Plan details
Sophia Plan is now sold.
Check out available nearby plans below.