



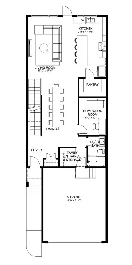
You have a large extended family and you’re everyone’s “home away from home.” Family Generations includes a dining area that easily fits 12 people or more and a kitchen designed for preparing food together. The main floor den can be converted into a homework room or an additional room for overnight guests. Two spacious bedrooms give the kids space to focus on schoolwork without disruption and the large primary suite is the perfect place to take care of yourself after taking care of everyone else. Source: Cantiro