hero-image-0
hero-image-1
hero-image-2

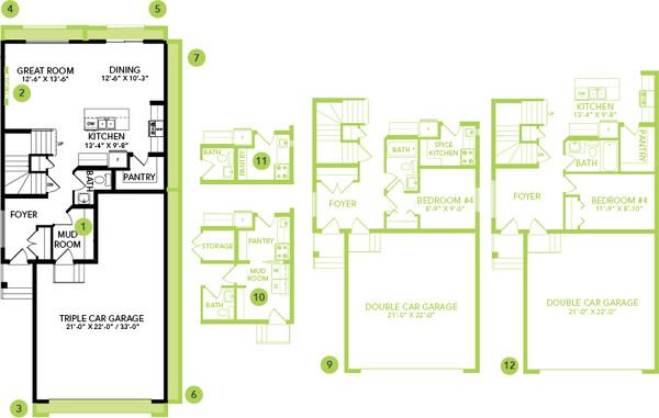
523 - 35th Avenue NW

By

Bedrock Homes

   |   

Maple Crest

Maple Crest
Sold
Sold
3
2
1
1,986
523 - 35th Avenue NW details
523 - 35th Avenue NW is now sold.
Check out available nearby homes below.