hero-image-0

448 - 41 Avenue NW

By

Bedrock Homes

   |   

Maple Crest

Maple Crest
Sold
Sold
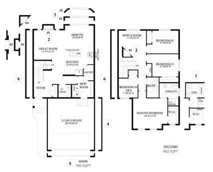
3
2
1
1,742
448 - 41 Avenue NW details
unit-banner-image
unit-banner-image
unit-banner-image
448 - 41 Avenue NW is now sold.
Check out available nearby homes below.