hero-image-0
hero-image-1
hero-image-2

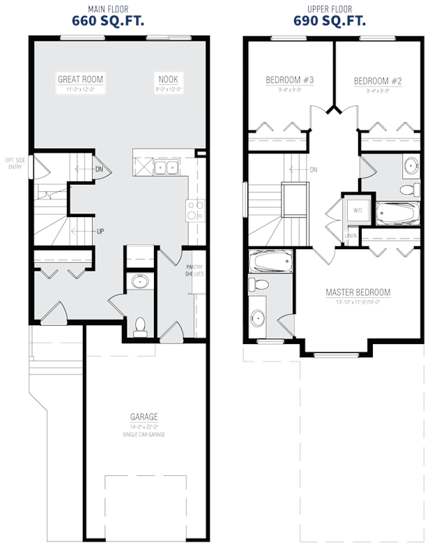
5128 Lark Crescent NW

Kinglet by Big Lake
Sold
Sold
3
2
1
1,394
5128 Lark Crescent NW details
5128 Lark Crescent NW is now sold.
Check out available nearby homes below.