hero-image-0
hero-image-1
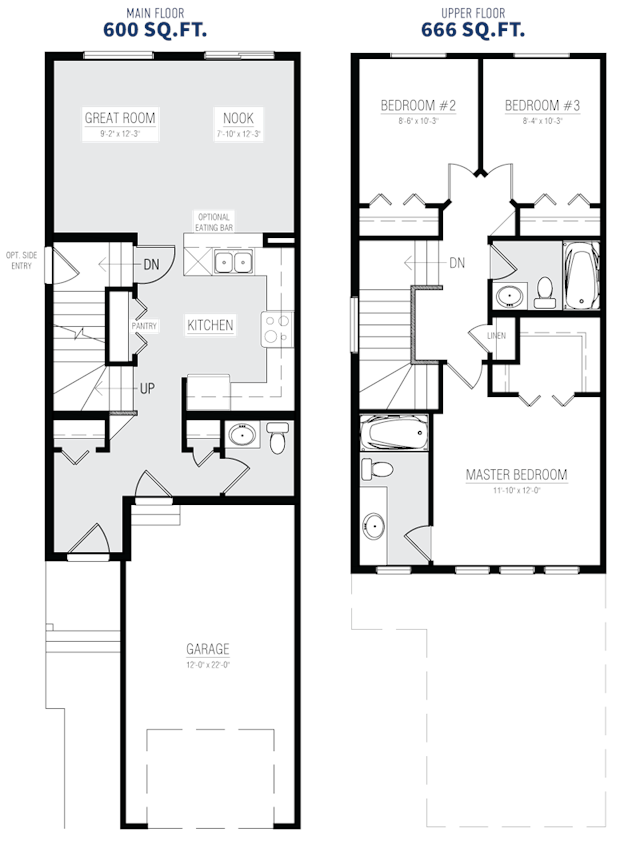
Kinglet by Big Lake
Sold
Sold
3
2
1
From 1,266
The Yoho Plan details
The Yoho Plan is now sold.
Check out available nearby plans below.