hero-image-0
hero-image-1
hero-image-2

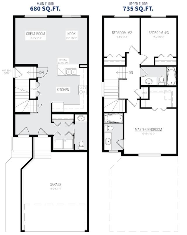
The Tremblant Plan

Kinglet by Big Lake
Sold
Sold
3
2
1
From 1,415
The Tremblant Plan details
The Tremblant Plan is now sold.
Check out available nearby plans below.