hero-image-0
hero-image-1
hero-image-2

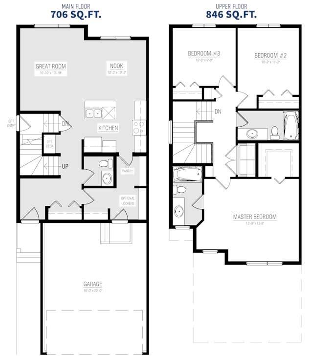
The Rundle Plan

Kinglet by Big Lake
Sold
Sold
3
2
1
From 1,552
The Rundle Plan details
The Rundle Plan is now sold.
Check out available nearby plans below.