hero-image-0
hero-image-1

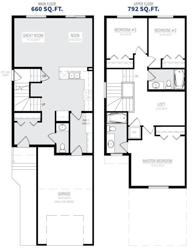
The Norquay Plan

Kinglet by Big Lake
Sold
Sold
3
2
1
From 1,452
The Norquay Plan details
The Norquay Plan is now sold.
Check out available nearby plans below.