hero-image-0
hero-image-1
hero-image-2

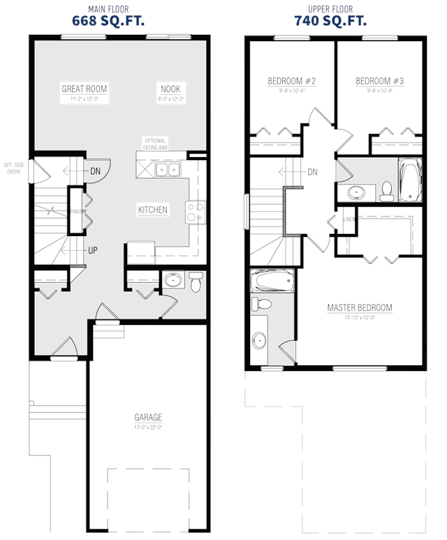
The Algonquin Plan

Kinglet by Big Lake
Sold
Sold
3
2
1
From 1,408
The Algonquin Plan details
The Algonquin Plan is now sold.
Check out available nearby plans below.