hero-image-0

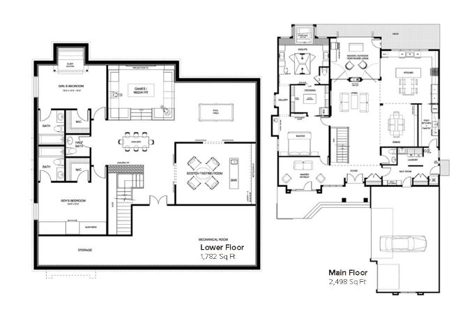
Princeton Lottery Home Plan

Keswick on the River
Sold
Sold
3
5
From 7,280
unit-banner-imageunit-banner-imageunit-banner-image
Princeton Lottery Home Plan details
Princeton Lottery Home Plan is now sold.
Check out available nearby plans below.