hero-image-0
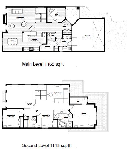
Keswick on the River
Sold
Sold
3
2
1
From 2,275
unit-banner-imageunit-banner-imageunit-banner-image
Kendal Plan details
Kendal Plan is now sold.
Check out available nearby plans below.