hero-image-0
Hudson Park by Dolce Vita Home...
Sold
Sold
3
2
From 2,652
unit-banner-imageunit-banner-imageunit-banner-image
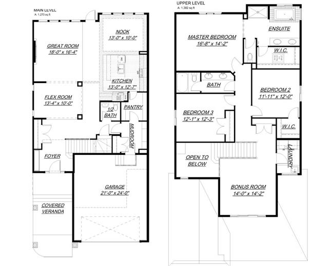
Terzano A Plan details
Terzano A Plan is now sold.
Check out available nearby plans below.