hero-image-0
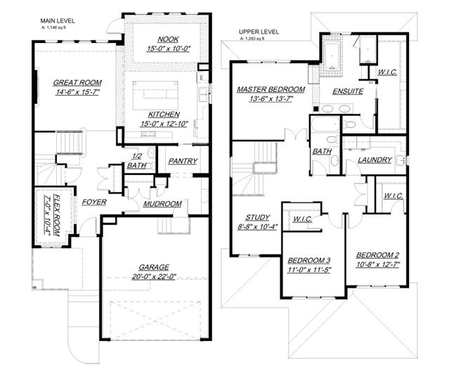
Hudson Park by Dolce Vita Home...
Sold
Sold
3
2
From 2,429
unit-banner-imageunit-banner-imageunit-banner-image
Siena II A Plan details
Siena II A Plan is now sold.
Check out available nearby plans below.