













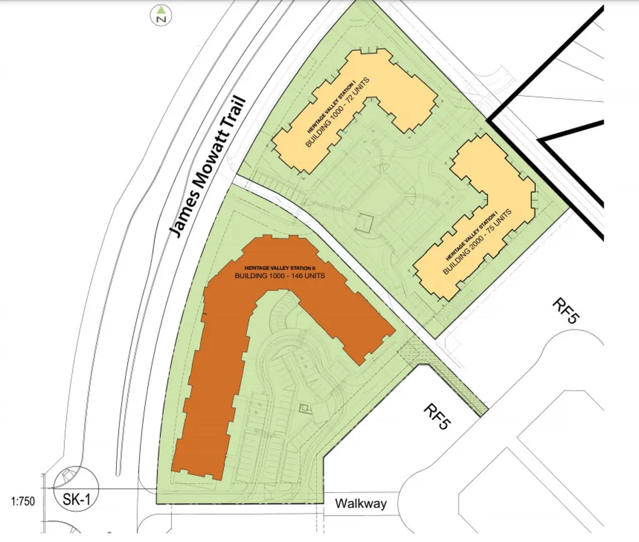
Heritage Valley Station
By Carlisle Group
| Allard in Heritage Valley master planned community
Sold Out
COMPLETED 2015
Sold out
Complete
1 - 3
1 - 2
From 1,025
Heritage Valley Station is now sold out.
Check out other available communities below.




