hero-image-0
hero-image-1

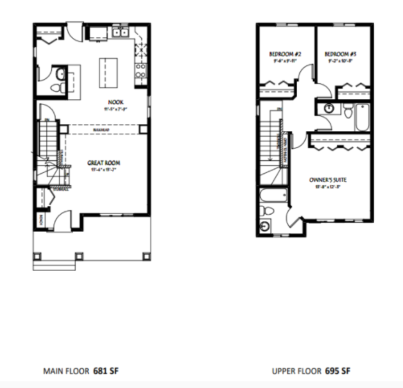
Maverick Plan

Graydon Hill
Sold
Sold
3
2
1
From 1,377
unit-banner-imageunit-banner-imageunit-banner-image
Maverick Plan details
Maverick Plan is now sold.
Check out available nearby plans below.