hero-image-0

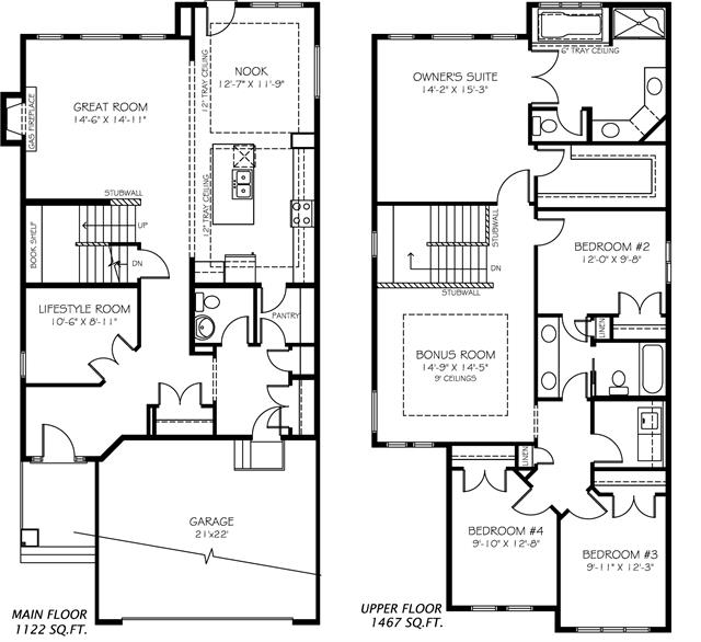
Secretariat Plan

Granville
Sold
Sold
4
1
1
From 2,589
unit-banner-imageunit-banner-imageunit-banner-image
Secretariat Plan details
Secretariat Plan is now sold.
Check out available nearby plans below.