hero-image-0

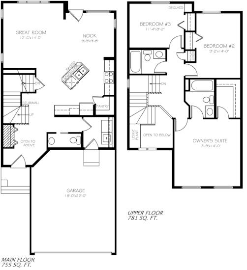
Salerno Plan

Glenridding Heights
Sold
Sold
3
2
1
From 1,536
unit-banner-imageunit-banner-imageunit-banner-image
Salerno Plan details
Salerno Plan is now sold.
Check out available nearby plans below.