hero-image-0

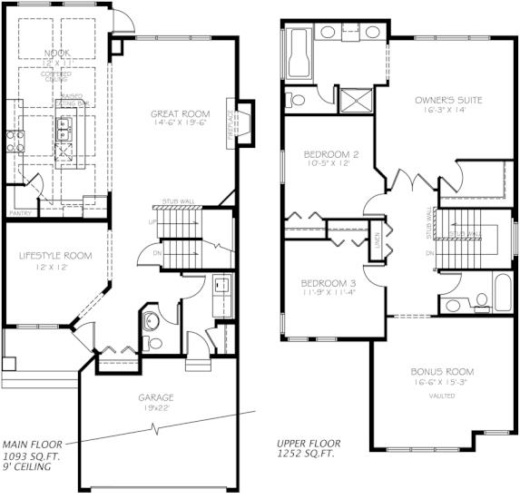
Madison E Plan

Glenridding Heights
Sold
Sold
3
2
1
From 2,345
unit-banner-imageunit-banner-imageunit-banner-image
Madison E Plan details
Madison E Plan is now sold.
Check out available nearby plans below.