hero-image-0

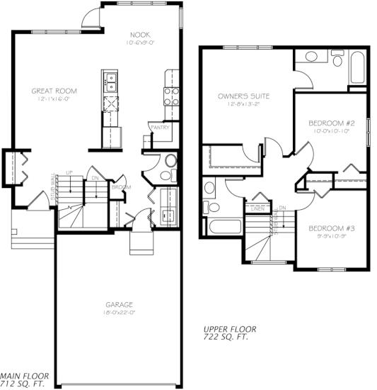
Calabrese Plan

Glenridding Heights
Sold
Sold
3
2
1
From 1,434
unit-banner-imageunit-banner-imageunit-banner-image
Calabrese Plan details
Calabrese Plan is now sold.
Check out available nearby plans below.