hero-image-0
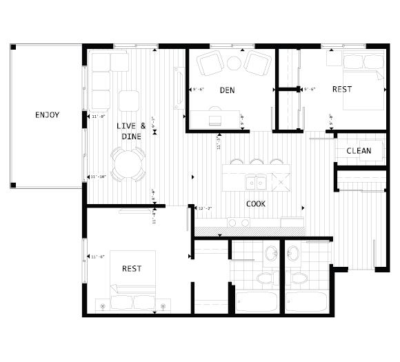
Elements at Willowhaven
Sold
Sold
2
2
1
1
From 955
unit-banner-imageunit-banner-imageunit-banner-image
Xenon Plan details
Xenon Plan is now sold.
Check out available nearby plans below.