hero-image-0
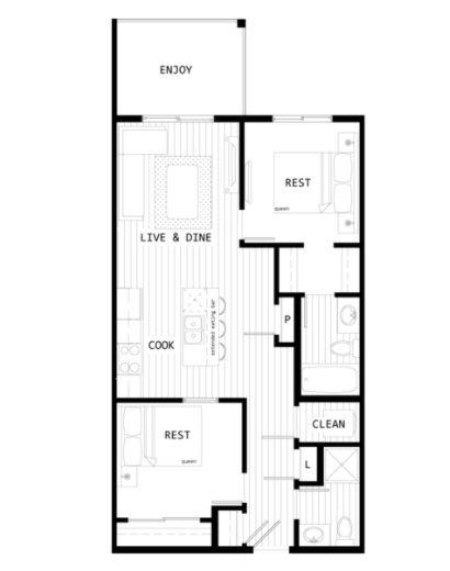
Elements at Manning
Sold
Sold
2
2
757
Unit 428 details
unit-banner-image
unit-banner-image
unit-banner-image
Unit 428 is now sold.
Check out available communities below.