





























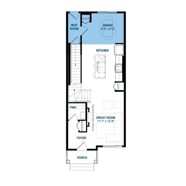
Welcome to The Kendal, a beautifully crafted home that combines smart design with everyday comfort. The journey begins with a spacious great room off the entry, offering the perfect setting for relaxing with family or hosting friends. At the heart of the home, the central kitchen features a functional eating bar, seamlessly connecting to the rear dining areaideal for casual meals or special occasions. A practical mudroom keeps everything organized, while upstairs, three well-appointed bedrooms and a versatile bonus room provide ample space for your familys needs. Customize your living experience with an optional basement, featuring the choice of 1 or 2 additional bedrooms, a cozy living room, and a games area. For added flexibility, The Kendal also offers 1- or 2-bedroom basement suite options, perfect for extended family or rental potential. The Kendal is ...
Stay informed with Livabl updates on new community details and available inventory.