hero-image-0

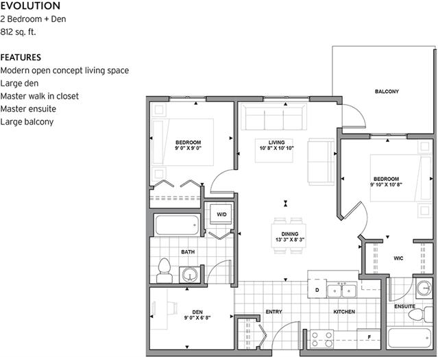
Evolution Plan

Creekwood Landing
Sold
Sold
2
2
1
From 812
Evolution Plan details
Evolution Plan is now sold.
Check out available nearby plans below.