hero-image-0

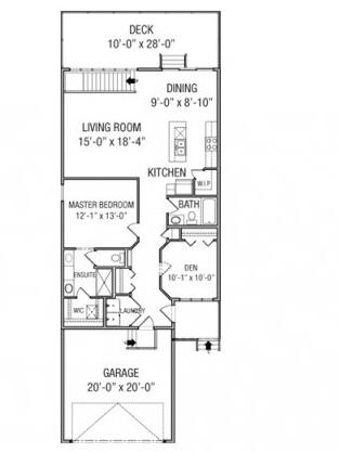
Berkley Plan

Callaghan North Vistas
Sold
Sold
3
3
From 1,248
unit-banner-imageunit-banner-imageunit-banner-image
Berkley Plan details
Berkley Plan is now sold.
Check out available nearby plans below.