hero-image-0

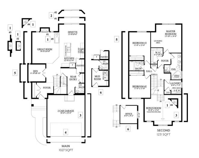
Montana H Plan

By

Bedrock Homes

   |   

Aurora

Aurora
Sold
Sold
3
2
1
From 2,258
unit-banner-imageunit-banner-imageunit-banner-image
Montana H Plan details
Montana H Plan is now sold.
Check out available nearby plans below.