hero-image-0

86 12815 Cumberland Rd. NW

Altius Skyview Townhomes
Sold
Sold
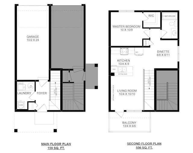
1
1
715
86 12815 Cumberland Rd. NW details
86 12815 Cumberland Rd. NW is now sold.
Check out available nearby townhomes below.