hero-image-0
Altius Rosenthal Stage 32
Sold
Sold
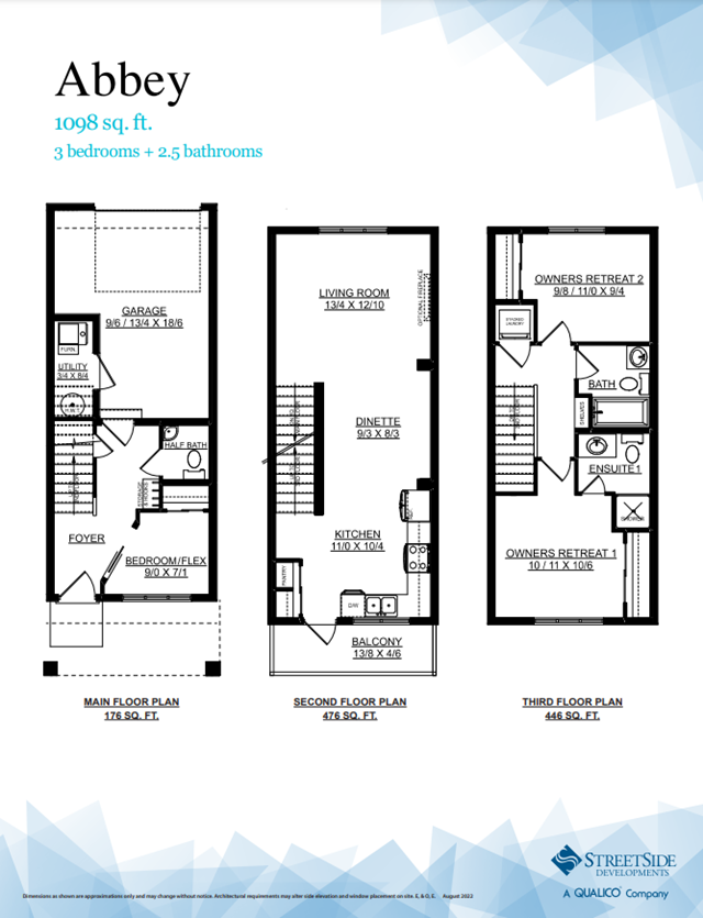
3
2
1
From 1,098
unit-banner-imageunit-banner-imageunit-banner-image
Abbey Plan details
Abbey Plan is now sold.
Check out available nearby plans below.