hero-image-0
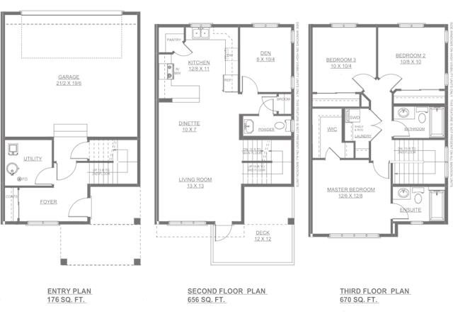
Altius Cy Becker
Sold
Sold
3
2
1
1
From 1,502
unit-banner-imageunit-banner-imageunit-banner-image
Madison Plan details
Madison Plan is now sold.
Check out available nearby plans below.