



Get additional information including price lists and floor plans.
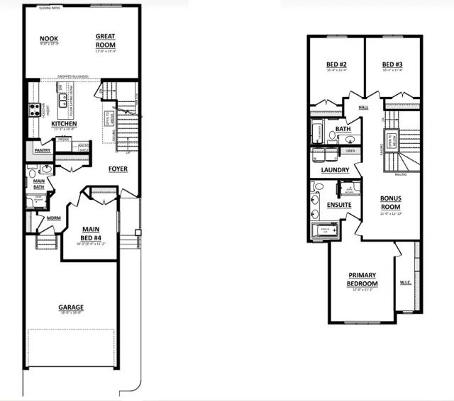
Features Are you looking for the perfect floor plan with that extra wow factor? You can have it with The Durnin model! You can also have 3 bedrooms and 2.5 bathrooms in a whopping 1,845 square feet of space. Open To Below Full quartz throughout Hood fan above stove Large foyer Source: San Rufo Homes
Stay informed with Livabl updates on new community details and available inventory.