































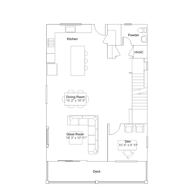
This three-story home has a great layout, with a large bedroom on the first floor. The second level hosts the main living areas with an open design shared by the kitchen, dining room and Great Room which opens to a deck. A den adds versatility. On the top floor is a central loft surrounded by three bedrooms, including the lavish owner's suite.