































Images unavailable
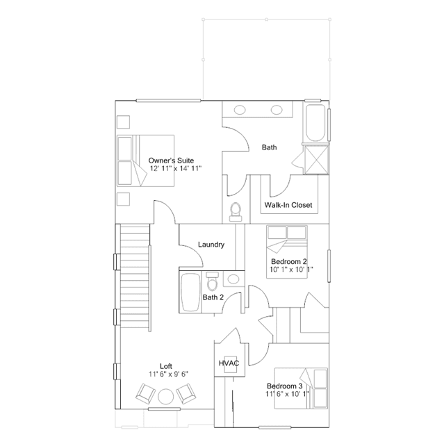
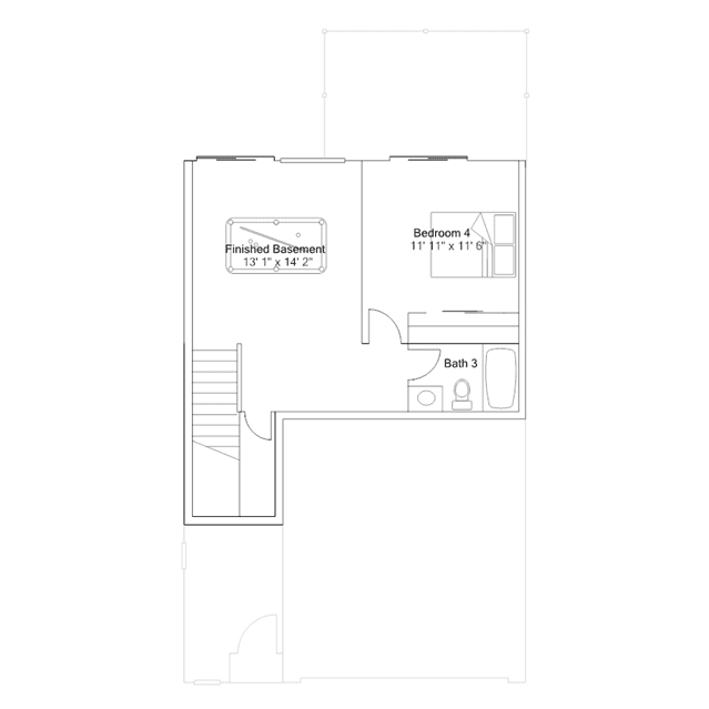
The Great Room, kitchen and dining room share a footprint on the first level of this two-story home, with sliding glass doors that lead to a deck for outdoor living and entertaining. A loft and three bedrooms occupy the second floor, while a basement offers additional shared living space and an additional bedroom.