



















Get additional information including price lists and floor plans.

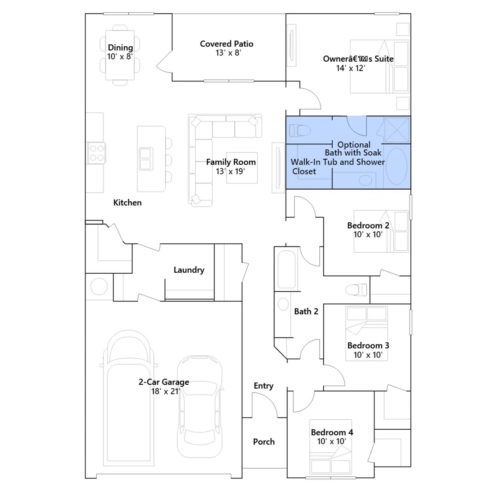
This new four-bedroom home offers convenient single-story living. An open-concept layout combines the kitchen, living and dining areas, with a nearby covered patio providing simple indoor-outdoor living. All four bedrooms are tucked away to the side of the home for optimal privacy and comfort, including the lavish owners suite with a full bathroom and walk-in closet.
Stay informed with Livabl updates on new community details and available inventory.