






































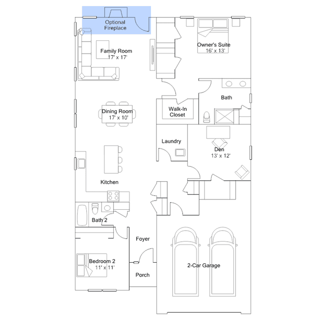
This single-story home features an open layout in the kitchen, dining room and Great Room that flows easily to the backyard, perfect for the active adult homeowner. In addition to the owners suite, there is a den and extra bedroom for a home office or hobby area.