


























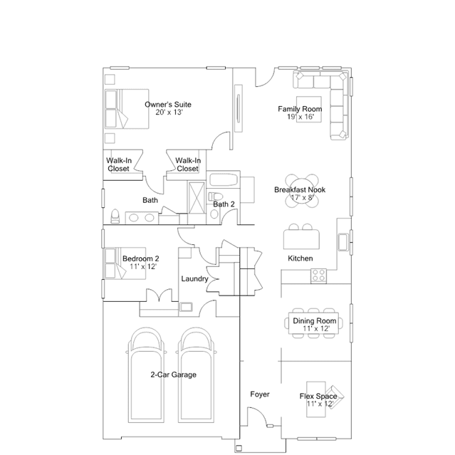
Designed with the active adult homeowner in mind, this single-story home with a split floorplan is the largest in the collection and offers an optional second floor. Near the foyer is a convenient flex room and formal dining room, followed by an open space kitchen, breakfast nook and Great Room. In a private corner of the home is the owners suite, plus a spare bedroom ideal for overnight guests or a hobby area.