














Get additional information including price lists and floor plans.
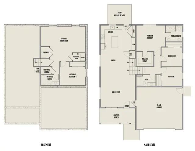
The Cedar plan is a split-level home with three to five bedrooms and a large basement in 2,239 approximate square feet. Enter from a covered porch and find a great room, dining area, and kitchen with a large island. Up one-half level of stairs from the great room, you'll find the primary bedroom suite with a walk-in closet and large bathroom, including his and her sinks. On this level, youll find the second and third bedrooms with an additional shared bath with a tub/shower. Back on the ground floor, a second short flight of stairs lead down to the basement level. The basement is where the laundry and furnace are located, as well as unfinished space for an additional livign space, a future bedroom, and a future bathroom. There's room to grow in this Williams Home.
Stay informed with Livabl updates on new community details and available inventory.