






























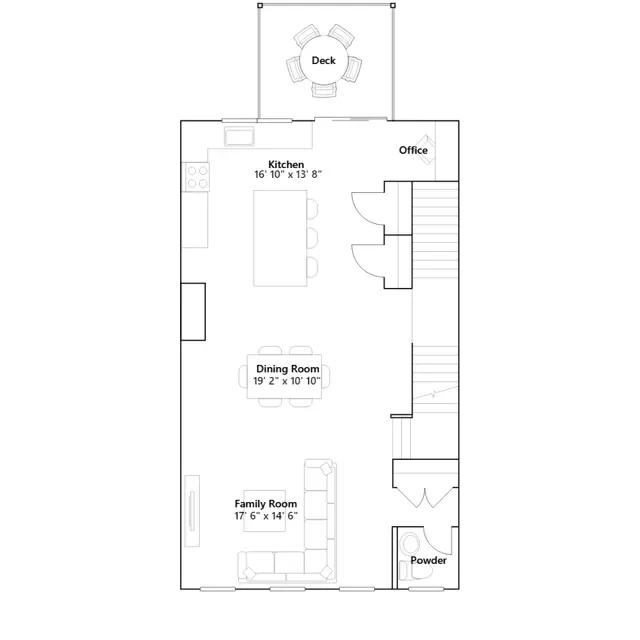
This three-story townhome is great for family living. The first floor features a spacious garage and finished lower level that can double as a media room, while the second floor displays an open design among the family room, dining room and kitchen with access to a deck. For a cozy escape, the top floor features three bedrooms, including the owners suite.
Stay informed with Livabl updates on new community details and available inventory.