





















































Get additional information including price lists and floor plans.
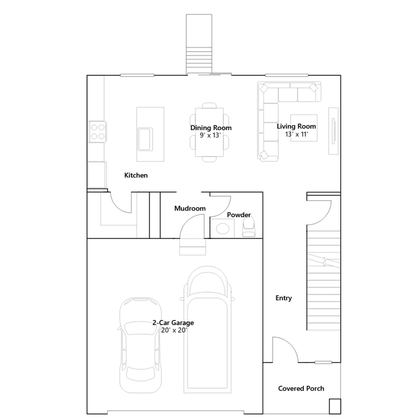
The living room, kitchen and dining room share a convenient and contemporary open floorplan on the first level of this two-story home, offering access to the patio through sliding glass doors. All three bedrooms are located on the second floor, including the expansive owners suite, which includes a spacious bedroom, en-suite bathroom and walk-in closet.
Stay informed with Livabl updates on new community details and available inventory.