


































































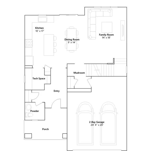
A spacious two-story new home with a first floor dedicated to living and entertaining with an open layout among the Great Room, kitchen and dining room. Upstairs are all four bedrooms including the lavish owners suite, which features a restful bedroom, en-suite bathroom and walk-in closet.
Stay informed with Livabl updates on new community details and available inventory.