



























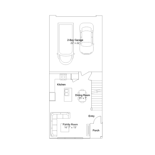
The first floor of this new two-story townhome is host to an inviting open floorplan consisting of a kitchen, dining room and family room, with a two-bay garage conveniently placed at the back of the home. Three bedrooms are located upstairs, including the luxurious owners suite, complete with an en-suite bathroom and walk-in closet.