











































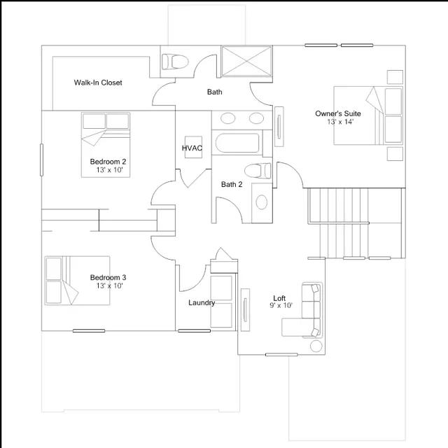
This spacious two-story home features an open concept design among the family room, modern kitchen and caf with attached lanai to promote seamless everyday living. Ideal for overnight visitors, there is a first-floor bedroom directly off the foyer. Upstairs, a cozy loft is surrounded by two secondary bedrooms and the serene owners suite with an oversized walk-in closet.