












































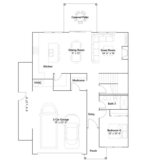
This new two-story home has fantastic features, including a covered patio, a mudroom near the garage and a versatile bonus room. A convenient bedroom can be found off the entry, leading to an inviting open-concept floorplan that combines the kitchen with the living and dining areas. Upstairs, the bonus room is surrounded by three additional bedrooms, including the owners suite with a spa-inspired bathroom and generous walk-in closet.