hero-image-0
hero-image-1
hero-image-2
hero-image-3

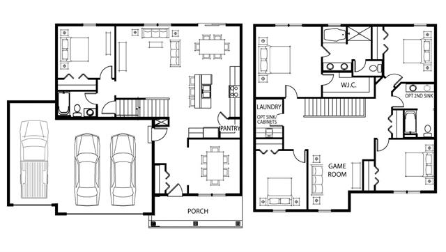
The Harrison Plan

By

D.R. Horton

   |   

Hillcrest

Hillcrest
Sold
Sold
4
2
1
From 2,522
unit-banner-imageunit-banner-imageunit-banner-image
The Harrison Plan details
The Harrison Plan is now sold.
Check out available nearby plans below.