

























































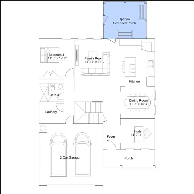
This new two-story home is a family haven in all seasons. The main level has an open space among the family room, a kitchen, a dining room, along with a private study and a bedroom ideal for guests. An attached patio is perfect for morning coffee and evening meals. All the upstairs bedrooms have walk-in closets, while a loft adds versatility.
Stay informed with Livabl updates on new community details and available inventory.